E-commerce tevékenység beindításához készülő rámpa és előtető szerkezet tervezéséhez és kivitelezéséhez.
Helyszín: Törökbálinti Auchan, Magyarország
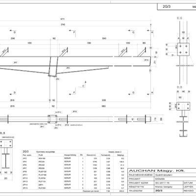
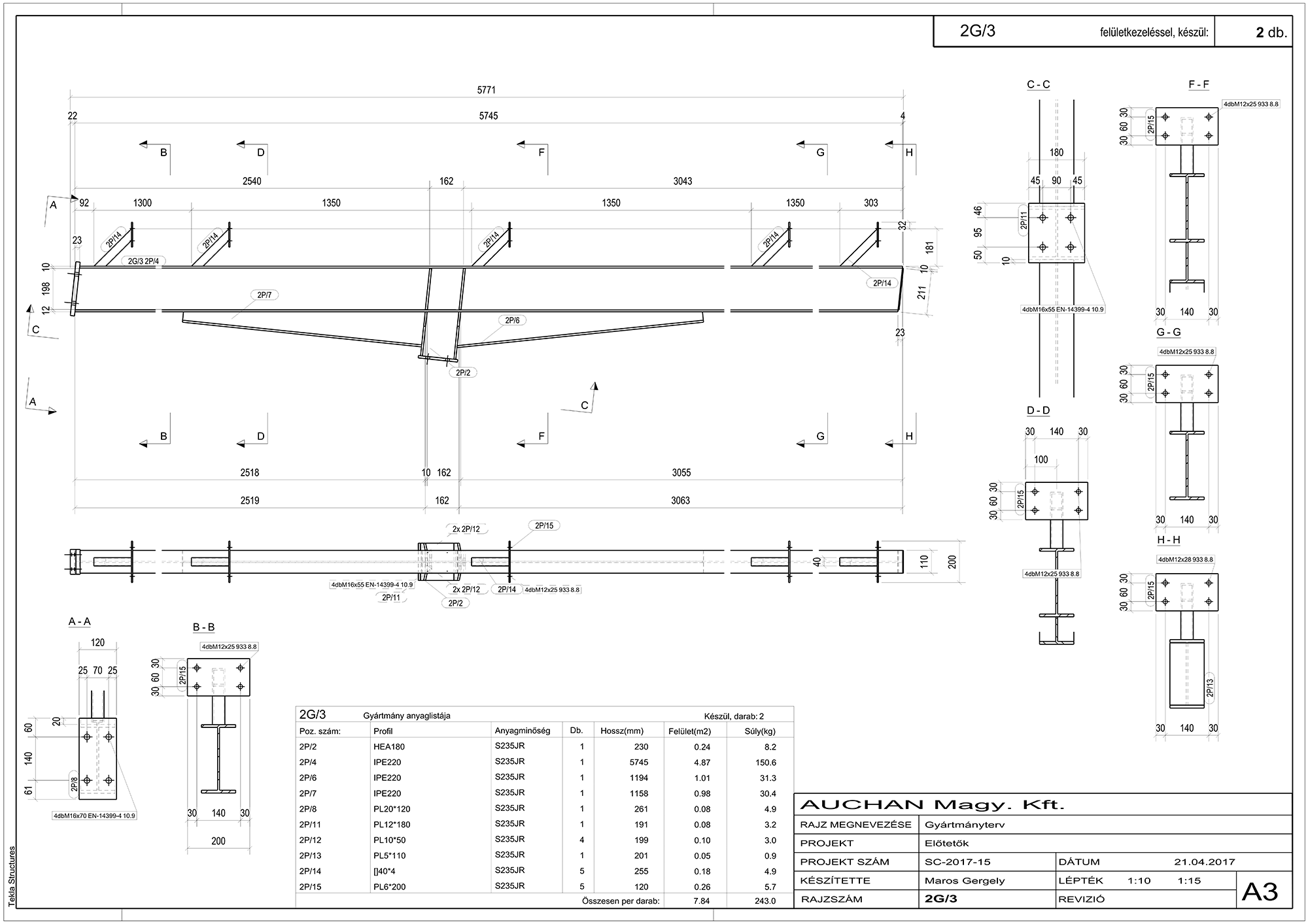
Feladat: E-commerce tevékenység beindításához készülő rámpa és előtető szerkezet tervezéséhez és kivitelezéséhez. A helyszíni terepviszonyok scannelése, Tekla modellezése, és kitűzése Trimble RTS (Robotic Total Station) géppel
Kihívás: Valóság alapú statikai tervezés és kitűzés folyamatba rendezése a legújabb felmérő technikák sorba rendezésével. Így a teljes tervezési és kivitelezési folyamat 3D alapú lett. Külön kihívást jelentett h az RTS gép Magyarországon először került felhasználásra és folyamatba építve.
Megoldás:
- Laser scannerrel az Auchan udvarát felmértük, amelyből kaptunk egy 3D pontfelhő képet
- Ez alapján készült egy háttér modell a meglévő állapotról
- Párhuzamosan a statikai tervező 2D és 3D alapon elkészítette a statikai terveket a szükséges számításokkal együtt
- A háttér modellbe történt a méretezett, engedélyezett statikai terv beemelése Tekla BIM sightba, amelyet ütközésvizsgálatnak helyeztünk alá
- Ütközésvizsgálat utáni végleges terv RTS (Robotic Total Station) géppel került kitűzésre a helyszínen
Szállítandó eredmények:
- 3D háttér modell az épületről
- 3D Tekla acélszerkezeti terv
- 3D alapú kitűzés
Hozzáadott érték:
Miután a teljes folyamat 3D alapú és a valóság került meghatározásra a projekt folyamat legelején, így már tervezés fázisban is garantált a hibák és az ebből adódó veszteségek kiküszöbölése. Ez különösen fontos volt egy olyan acél szerkezet esetében, ahol egy meglévő épülethez kellett illeszteni az újat








